You may also like

ARCHITECTURAL PLANNING L
The project for the construction of the New City Market of Piacenza aims to create a modern complex, with spaces that can be used by all citizens. The center is organized in two volumes: the first one with the actual market, and the second one with administration office and a small supermarket. The project concept was born from the idea of an only 360mm-thin metal eave on the roof, who cover an L-shaped configuration towards the street, giving life to two different public square which becomes meeting points.
03/2021
BUILDING ELEMENTS DESIGN I
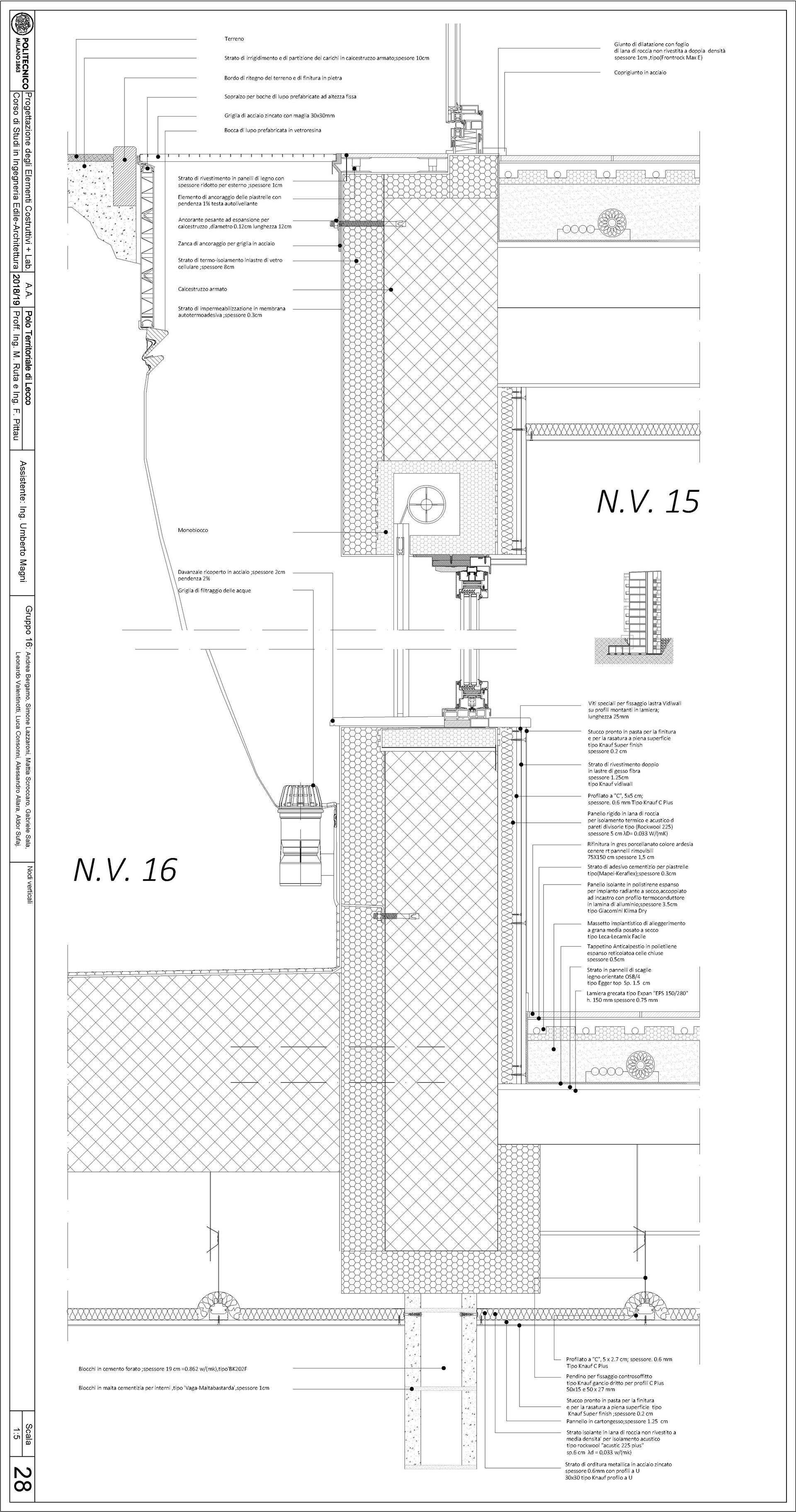
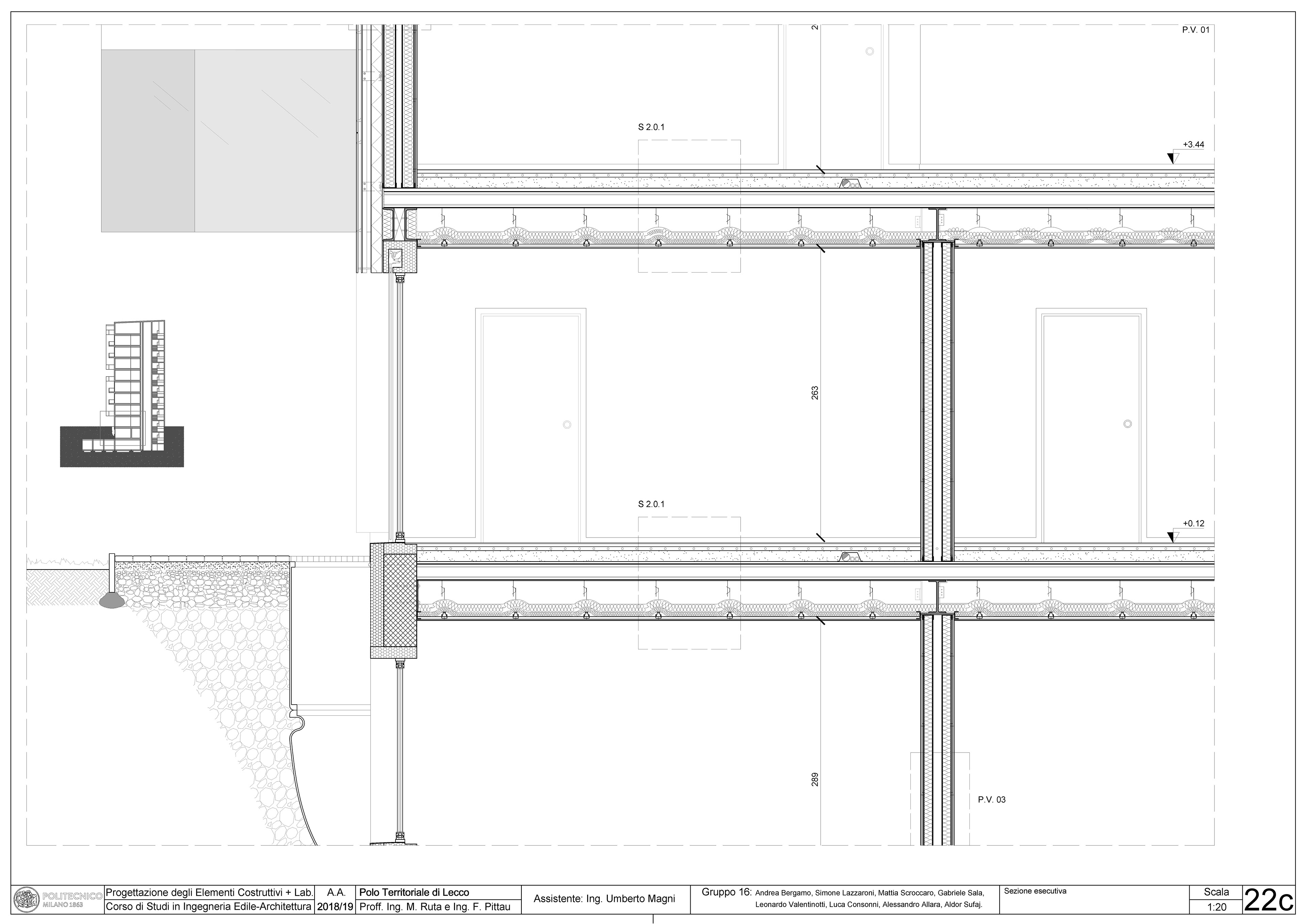
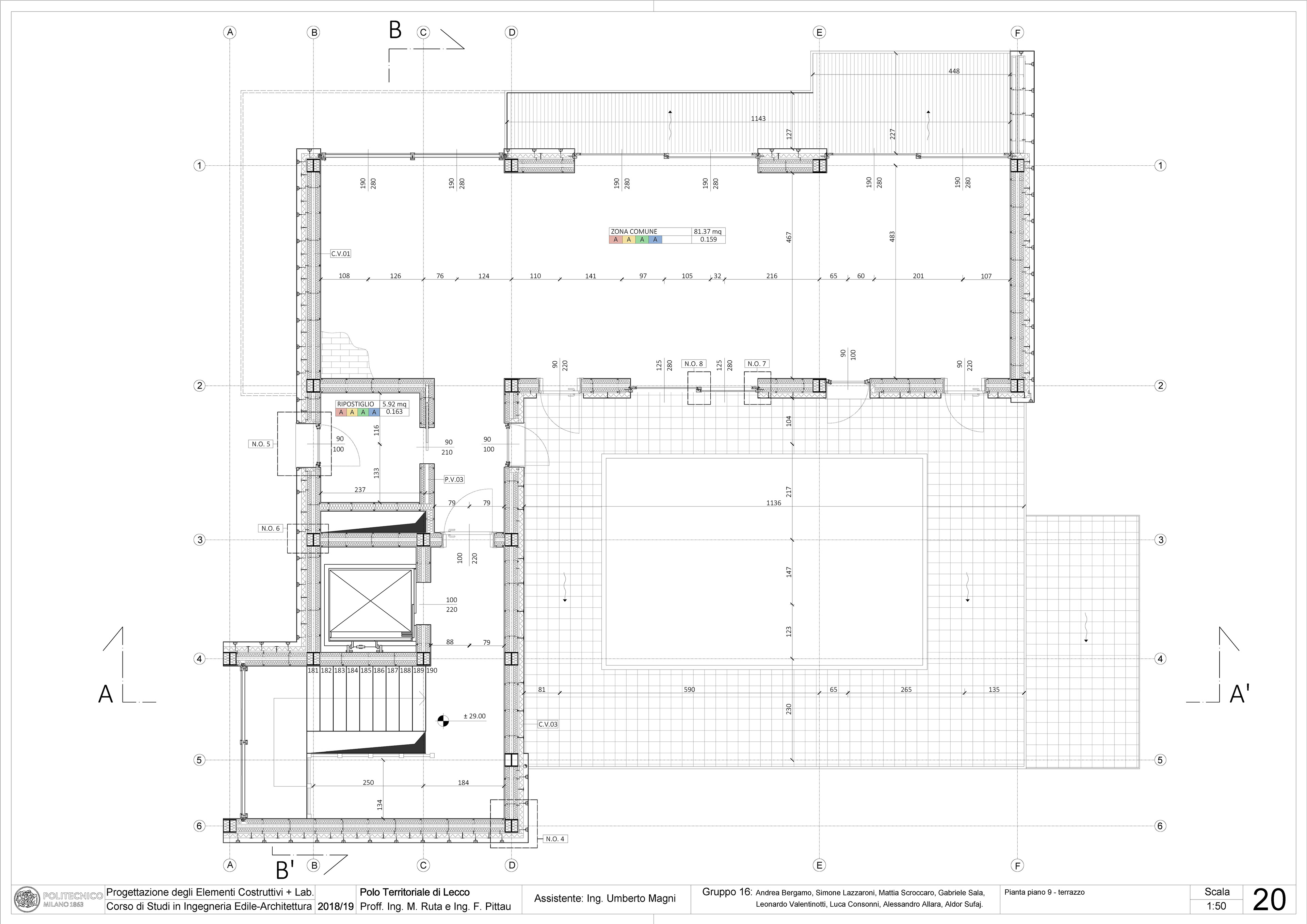
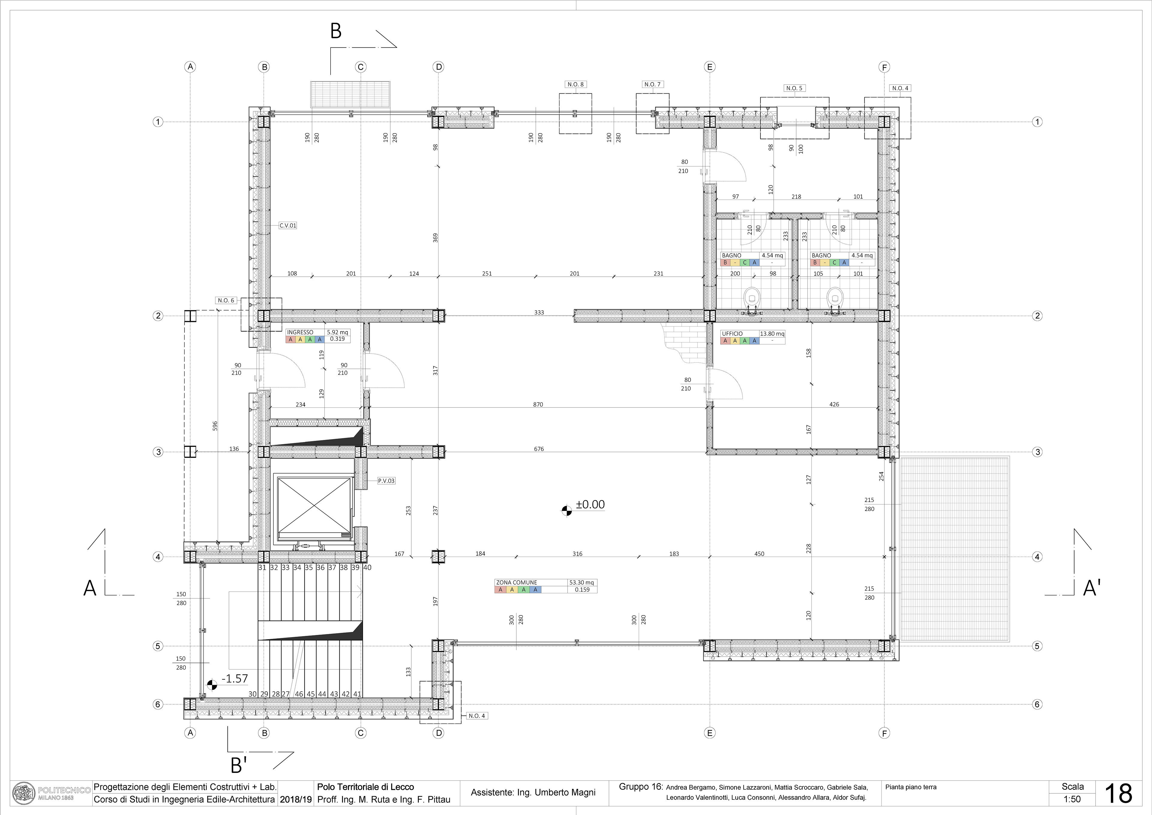
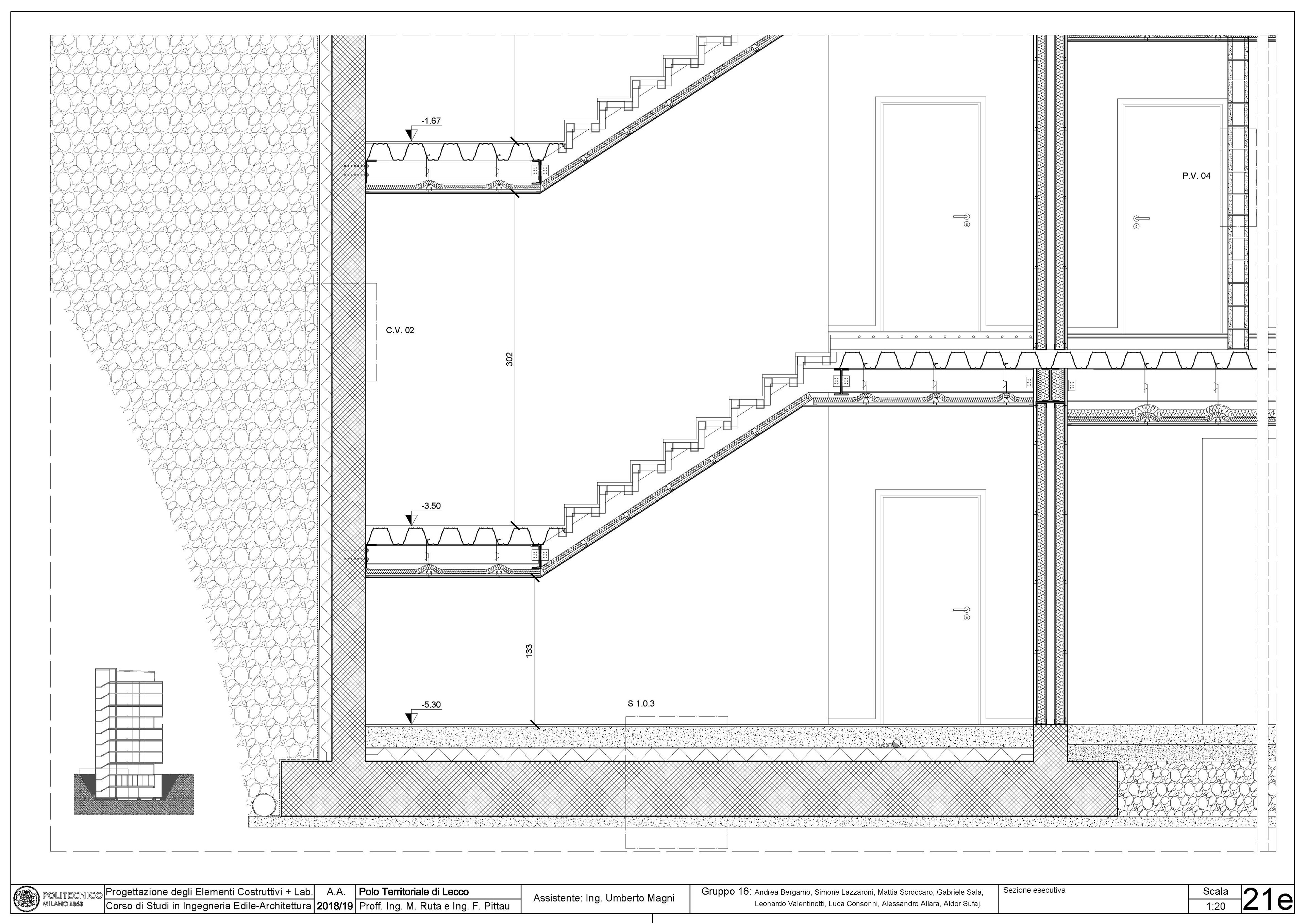
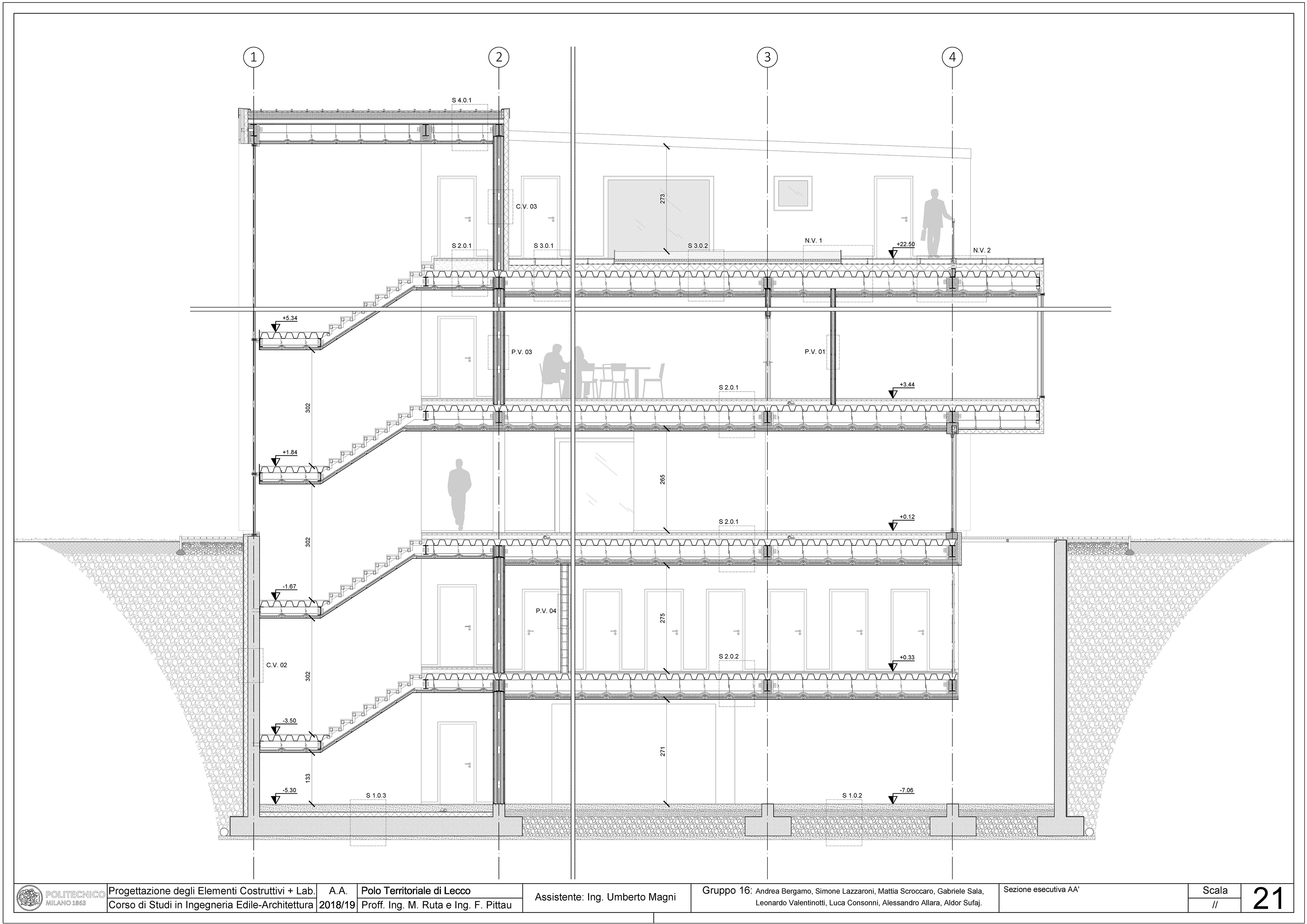
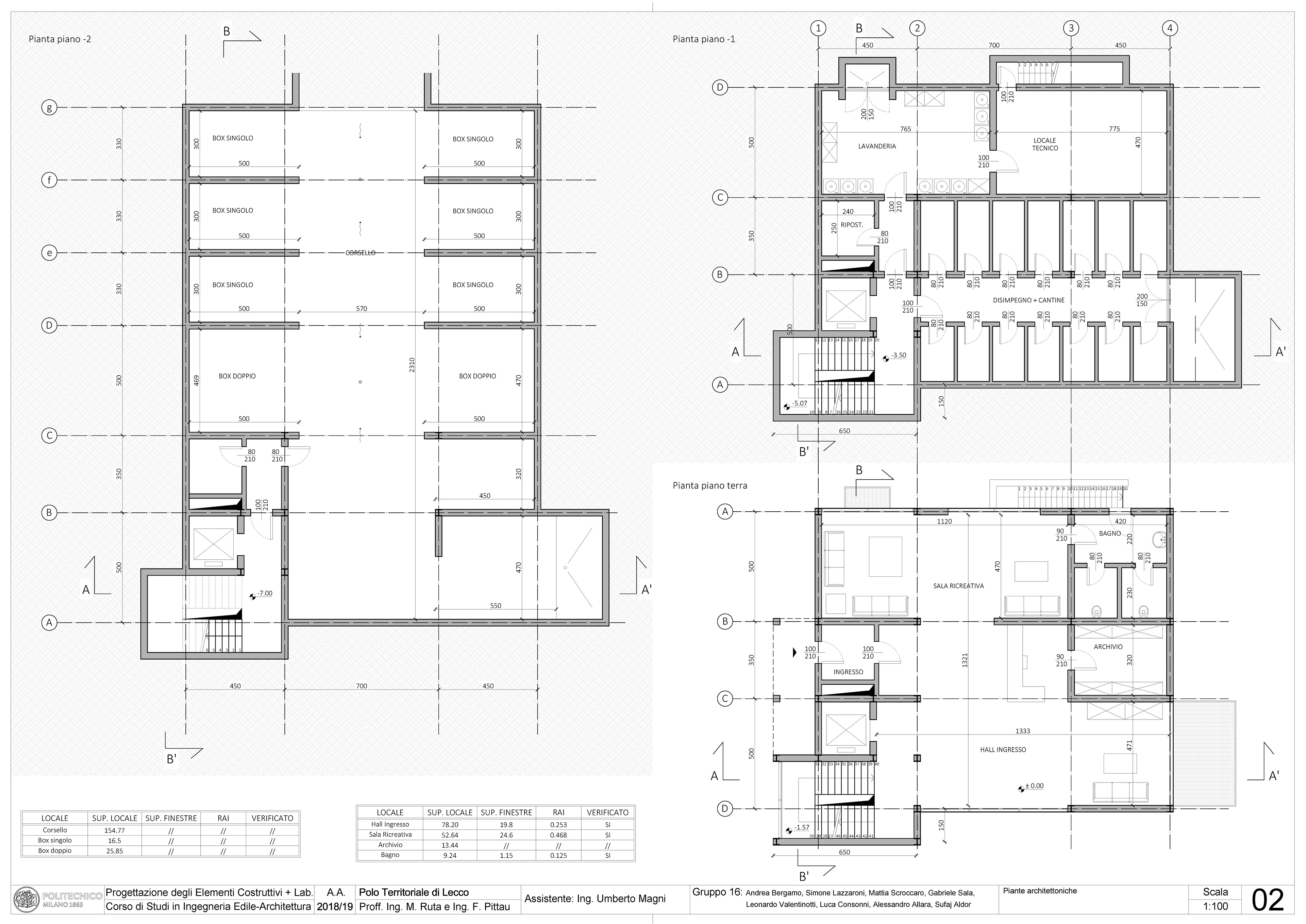
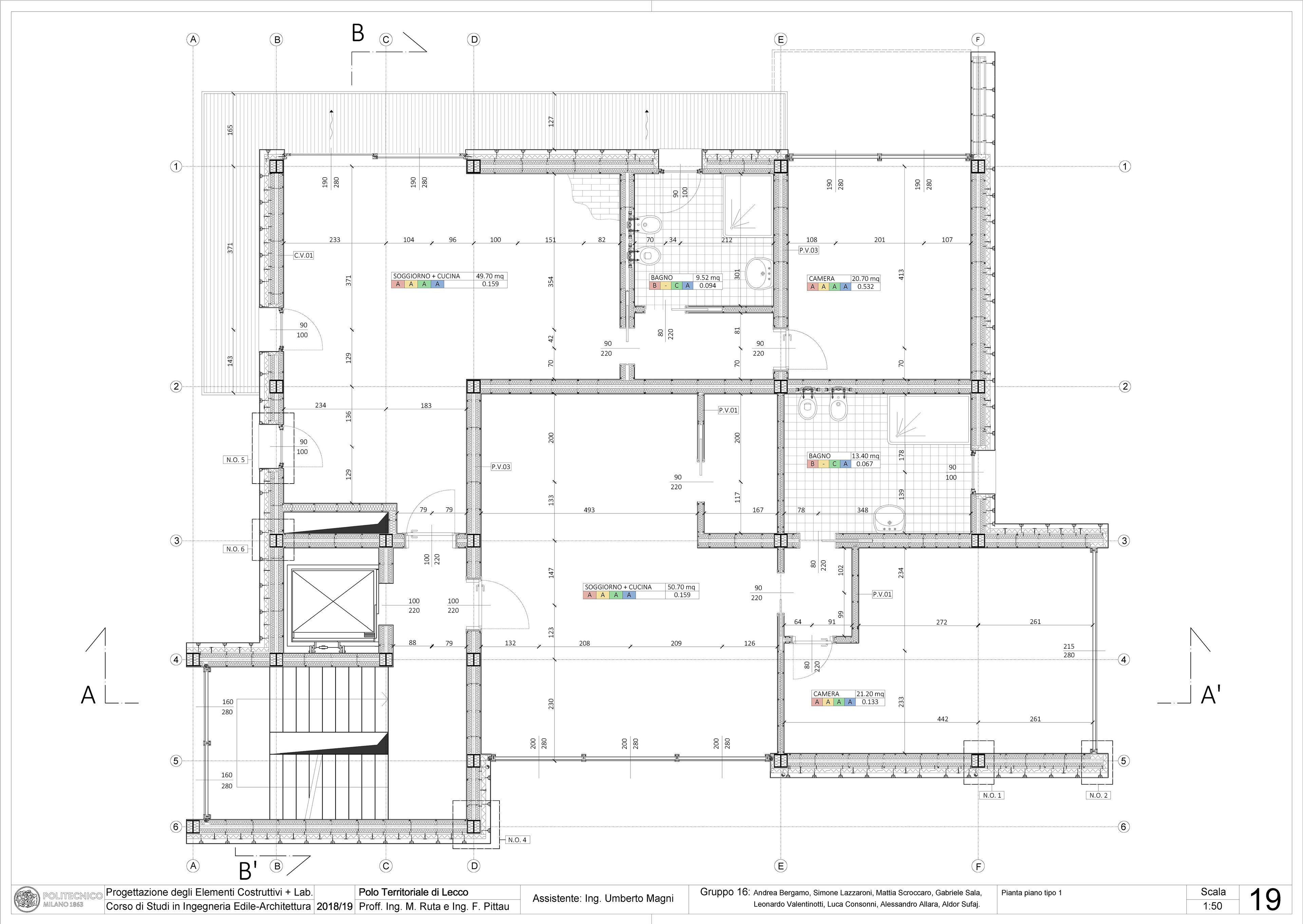
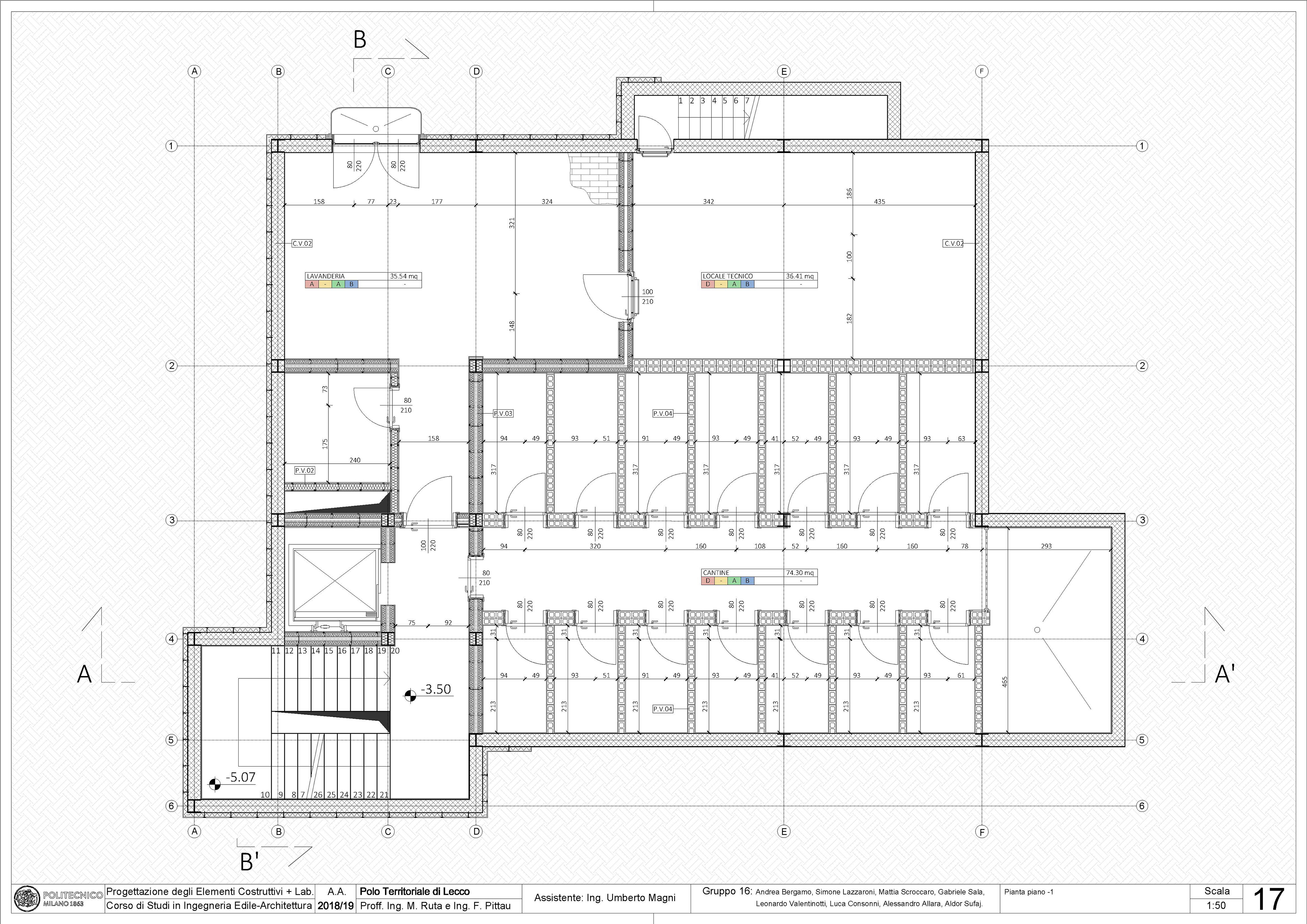
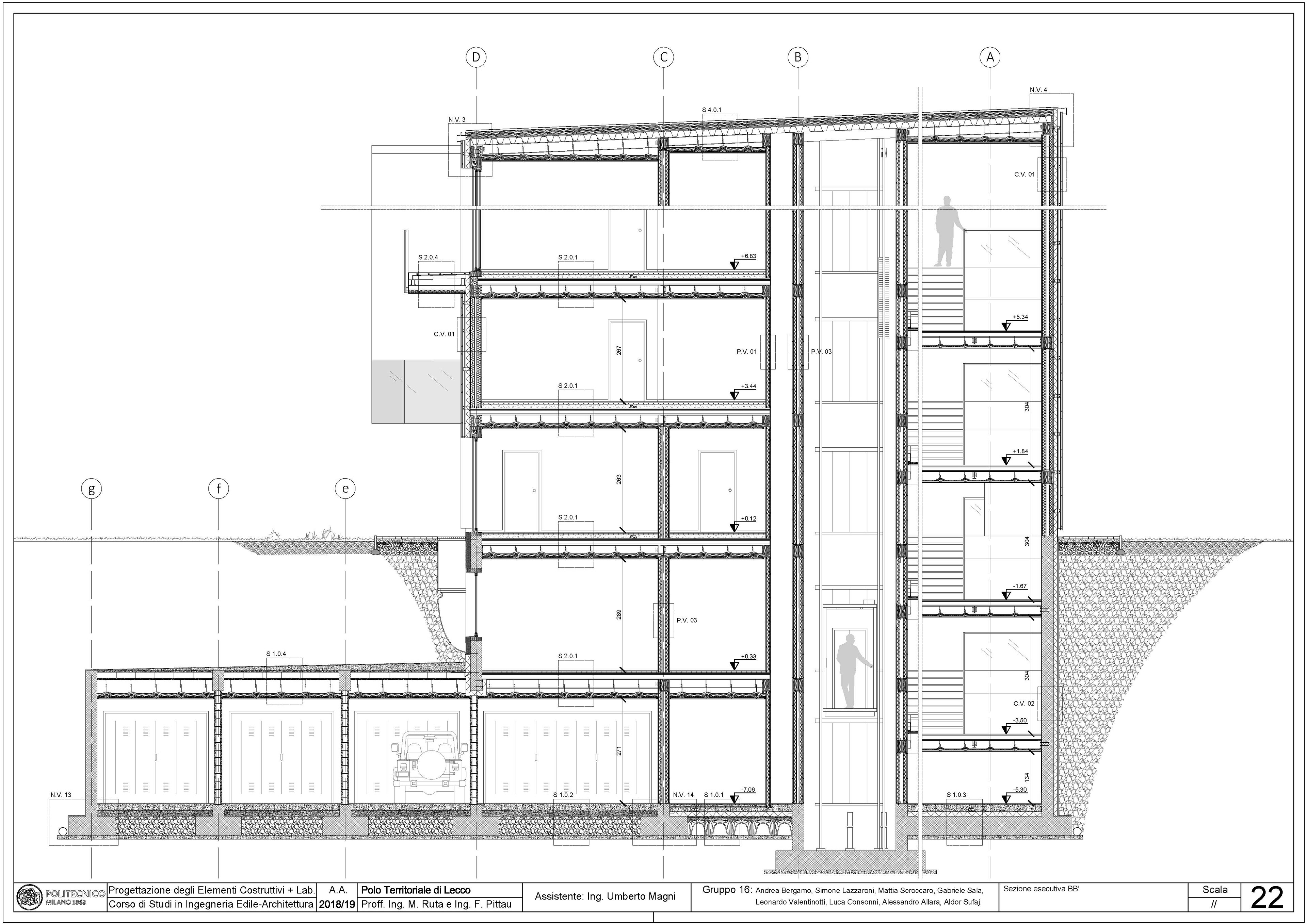
The first approach to the world of structural and architectural details at the second year. We analyzed a two-storey detached small house in all of its parts. From the foundations to the roof tiles, trought the structure made of the most traditional materials: concrete and wood.
07/2019
TECHNICAL ARCHITECTURE I
The building under study, a seven-storey museum located in New York (US) and recontextualized in Bari (IT), appears as a series of overlapping and staggered white parallelepipeds. For the analysis, given the complexity of the aggregation of volumes, the building was simplified to three floors. In this research we have analyzed the building from many points of view. After the location analysis such as average temperature, wind power ecc. we have done lighting, energy and climate analysis.
02/2020
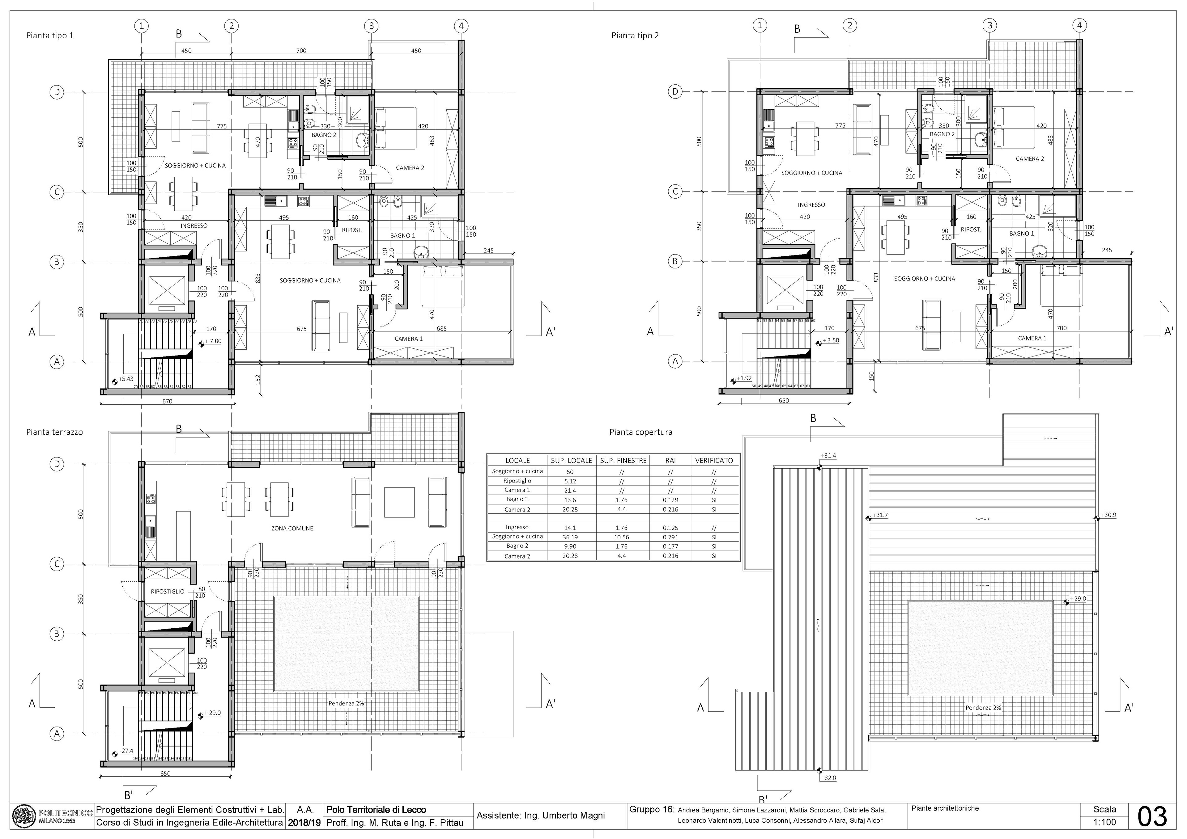
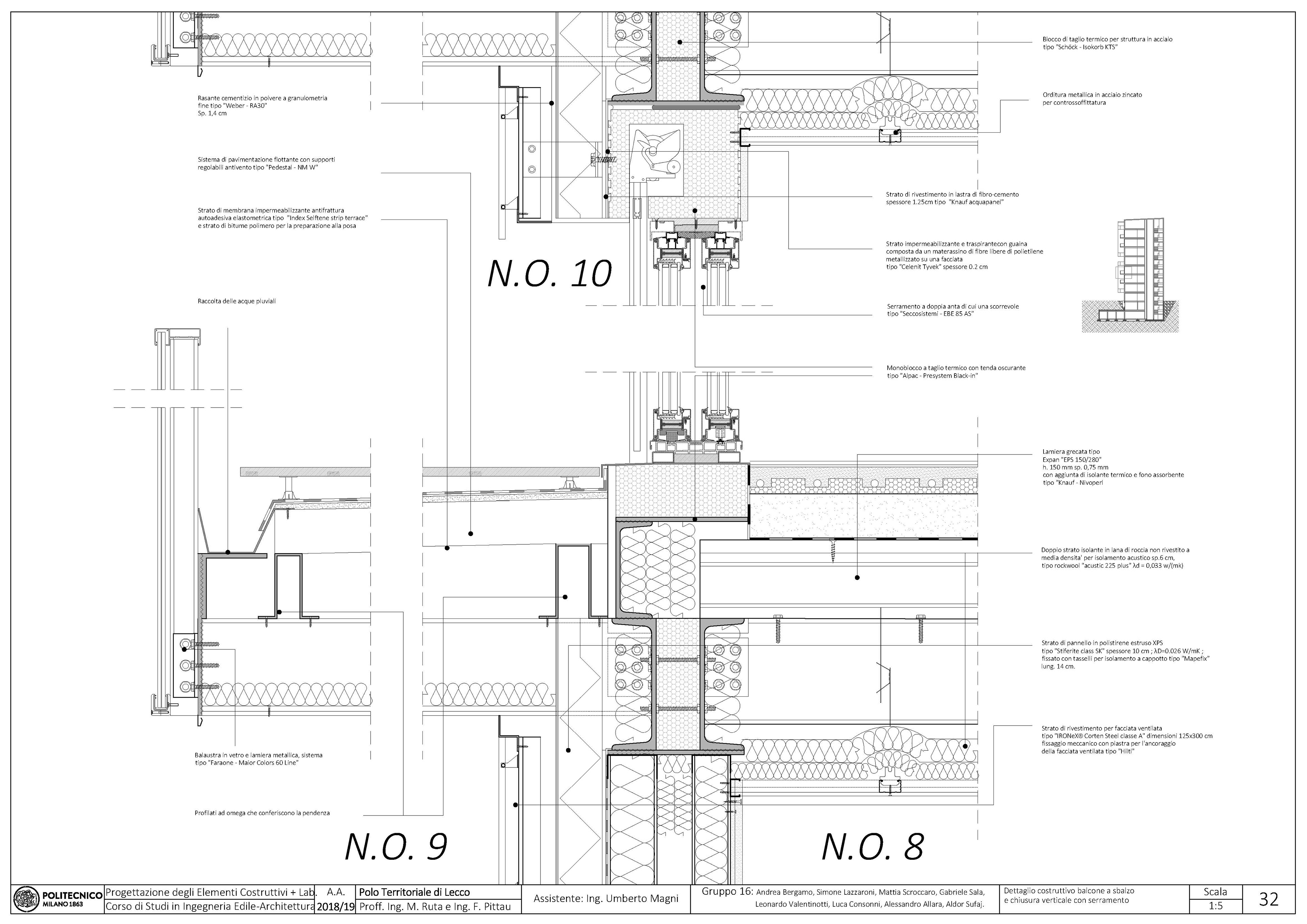
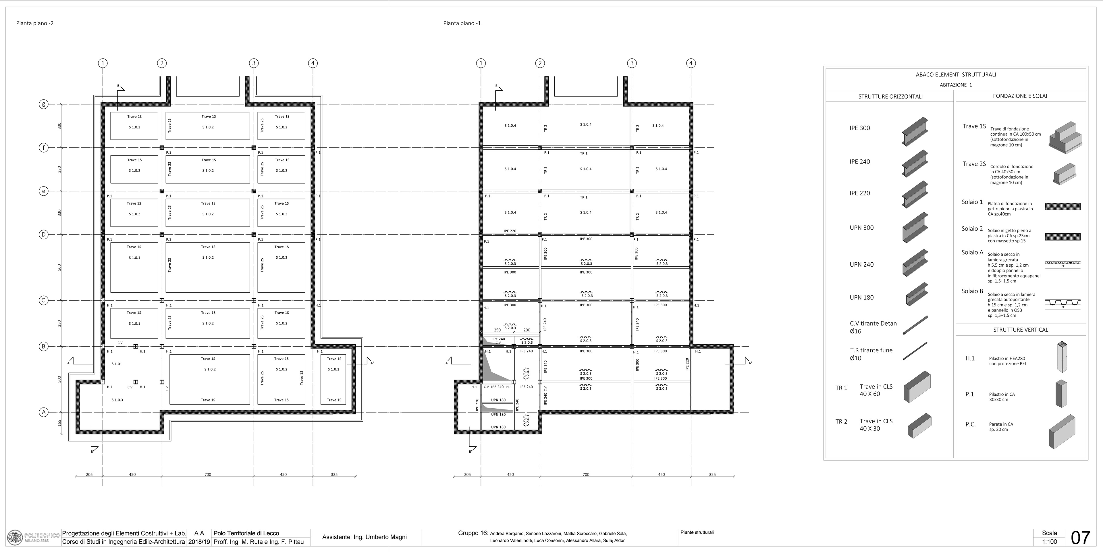
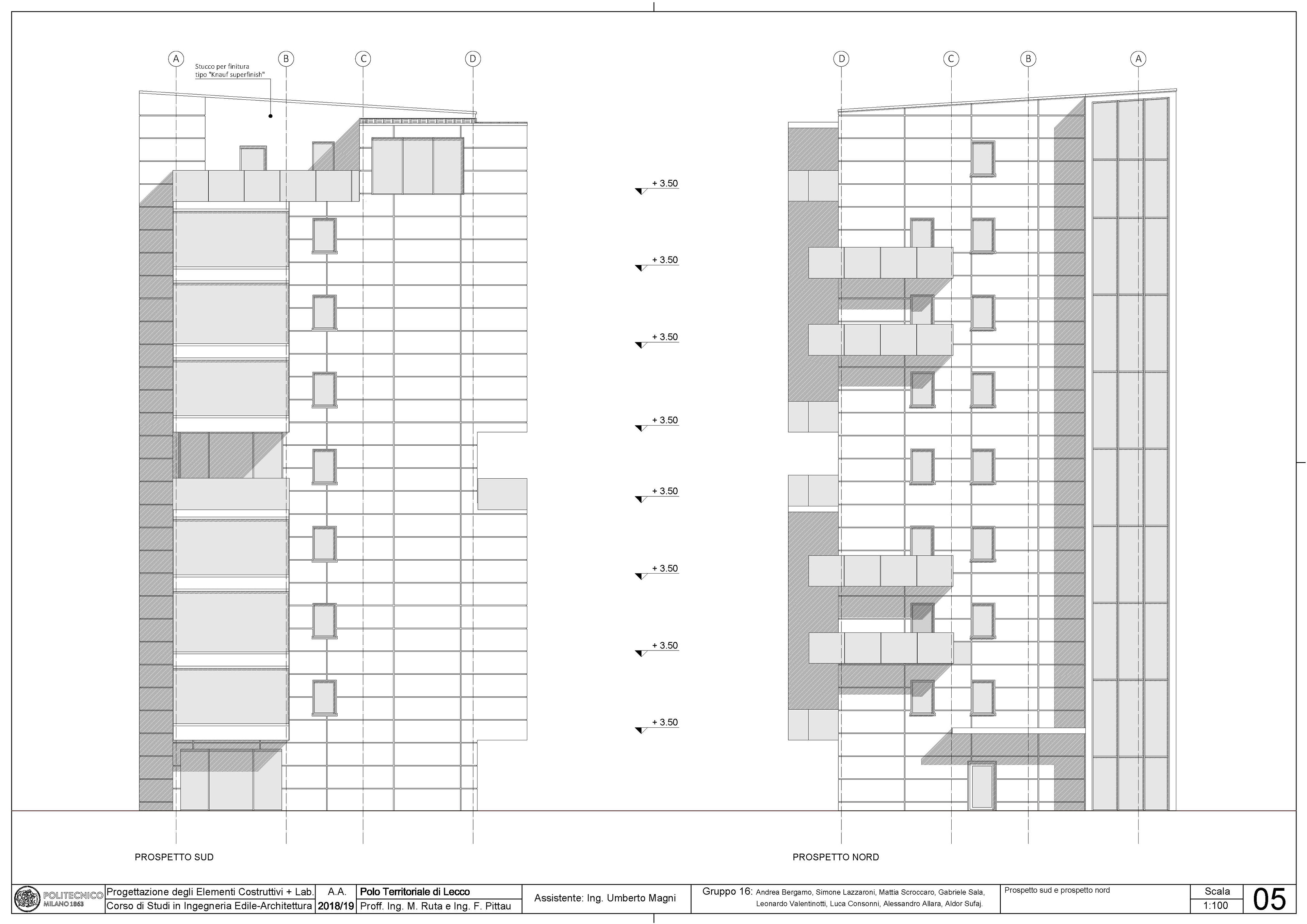
TECHNICAL ARCHITECTURE II
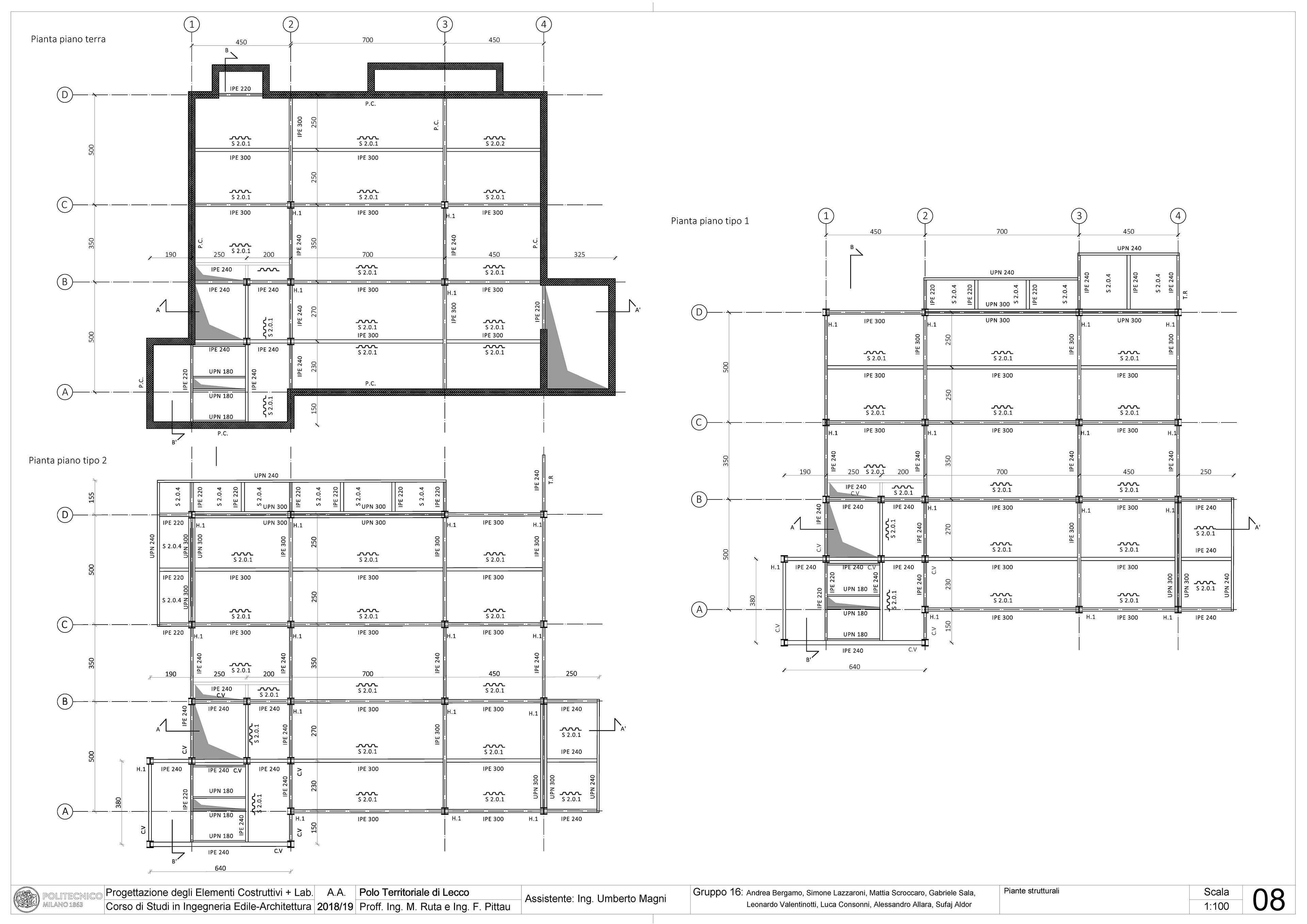
Learned the multiple analysis done with "TECHNICAL ARCHITECTURE I", we applied them to a previous group member's project of "ARCHITECTURAL PLANNING M". The building remained pretty similar to the original one but we detailed the structure, the materials, the stratigraphies and above all we studied the energy efficiency of our building, transforming it into a zero impact building. An accurate BIM model compounded by a structural, an architectural and a MEP model, was foundamental for a clash detection and an accurate price quotation.
07/2020
HISTORY AND CRITICISM OF ARCHITECTURE
Through this critics you will discover a beautiful architecture recently builded in Helsinki, Finland: the Helsinki Central Library by ALA Architects, aka "Oodi" in finnish. We focused on the social aspect of the building, highlighting what the Library represents for the average finnish guy, but we also talked about the architectural and structural parts.
02/2021
GENERALI TOWER
A solo project, done in the darkness time of the Covid-19 quarantine. I reconstructed the Generali Tower by ZHA, in Milan, Italy. My first approach to a parametric building, modelled entirely in Grasshopper and rendered with V-Ray.
04/2020
ARCHITECTURAL DRAWING II
After having learned how to properly use Revit (modelling a Figini&Pollini's house in Milan), Rdf, SketchUP (modelling a farmhouse in the Monza Park) and the "Scan to HBIM" metod (modelling the "Basilica di Sant'Ambrogio" in Milan, Italy), we studied and measured the historic building of "Canottieri Lecco": a rowing club in the center of Lecco, in northern Italy. We produced tables that show the current state of the building, paying attention to both internal and external details.
07/2019
HISTORY OF ARCHITECTURE 2
Through this research you will discover the history of the paternalism construction of the Falk Family who made a lot of building for the town of Sesto San Giovanni, near Milan in northern Italy. The focus was on a kindergarten built around the 1930, for free, for all the employees' children of the Falk's Village.
07/2020